 鲜花( 4)  鸡蛋( 0)
|
地址:11615 111 AV NW9 i& o5 E/ d' v
; O7 q8 a; V+ N7 L9 D
售价:$395,000
5 c5 _# Q$ z2 f T5 r) a# x9 y; Q
, r1 B" K4 E, K7 }4 {3 U1 T联系方式:老杨团队
+ L0 G0 T9 ]7 N4 o- {3 G5 A- E
% W' {4 k1 d, V5 V* z1 e8 r; C(http://www.fanyangteam.com)) U @! _4 R; D3 n$ L$ h* Q) S
$ A5 u: e& \# i2 t. o* r/ j; k
0 O2 x$ `+ u+ G" k2 @& |4 m4 X) p
* i; D }& B7 ]5 s6 G建商、投资者注意!超值旺地出售!- Q- v3 m- P) Y0 v' j
. ^8 o& o7 j9 E1 @6 \9 e7 ^& Y1 v
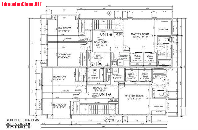
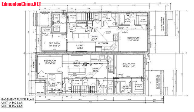
47'X155' 双拼地块坐落在优质名区 Queen Mary Park! 土地已经测量分好,可建造带合法地下室套房和独立双车库的双拼,设计和建造许可证都已包含在售价中,后无无忧!
! J0 {1 c# U* \ b) R$ y9 I) M
+ o K' W8 Z7 a7 v# ^4 b6 {位置超优越!步行Royal Alexandra医院、Kingsway Mall、LRT车站!驱车轻抵NAIT、MacEwan大学、冰区!便利直达市中心,周边商超齐全,畅享优越便利生活!- `* H& F+ q# p) W+ @( w
, Q9 u, R+ K7 J: {: c4 _& b" v1 ^2 l
VACANT LOT for sale. No demolition is needed and READY to build! Attention builders/developers/investors - 47'X155' HALF DUPLEX lot for sale in the desirable community of Queen Mary Park! Lot has been subdivided. Design & building permit for a side by side half duplex with legal basement suites & double detached garages is available & included in the price. Great location within walking distance to Royal Alexandra Hospital, Kingsway Mall, LRT & easy access to NAIT, MacEwan University & Ice District.quick access to downtown/Ice district, NAIT, Macewan University, Kingsway Mall, Shopping, and Amenities.5 O. x( G8 j4 e) h
( ~1 A, m1 \" `- o4 [
. h h6 u8 u4 X/ j& X
. {( ]# [5 \* v/ i1 i
4 ^/ U' c3 d& x$ H
7 p) I! \- |4 |( J
+ p: J6 Q5 ]2 }" \
. R% N: d7 _: E i( Z, F& @6 u: c
* o5 g" q1 _/ S% m( e) z
# v2 N: `2 [% P4 U
5 I5 T, @* N4 H( S
( m8 r8 A0 ?2 z4 G |
|